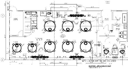
• Conceptual facility layouts to assist in space requirements and project cost estimates.
  • Updates issued thru project life as equipment vendor certified drawings become
    available.
  • Background reference for discipline drawings (electrical, instrumentation, etc.).
  • Documents issued for construction with a controlled location point for each piece of
    equipment.
Facility (Equipment) Layouts
Key Benefits